華天防爆型消防應急照明與疏散指示系統由應急照明集中電源/應急照明配電箱、消防應急標志燈、消防應急照明燈具組成。所有設備均經過防爆處理,能夠在易燃易爆環境中安全使用。
適用場景
·1區、2區IIA-IIC類爆炸氣體環境和21區、22區可燃粉塵場所環境。
·化工、煉油、海洋石油平臺、煤化工、制藥、輕紡、城市地下管廊、地鐵、高鐵。
·溫度組別:T1-T6 (戶外需加防雨罩)。
應急照明集中電源

產品特點
·本防爆箱外殼采用優質Q235 鋼板焊接成型,表面酸洗噴塑處理。
·具有良好的防腐性能,抗沖擊強度大,不銹鋼外露緊固件。
·智能微處理控制/DSP 數字控制 SVPWM 調制技術,功能齊全。
·LCD液晶顯示及故障聲光報警,維護簡單、方便。
·自動瞬間切換,可無人值守。
·靜置無噪音、無污染、無公害、節能性好,非應急供電時基本不耗電。
·質量可靠,同類產品中性價比最好,具有完整的保護功能。
·過載能力強,保護功能完善。
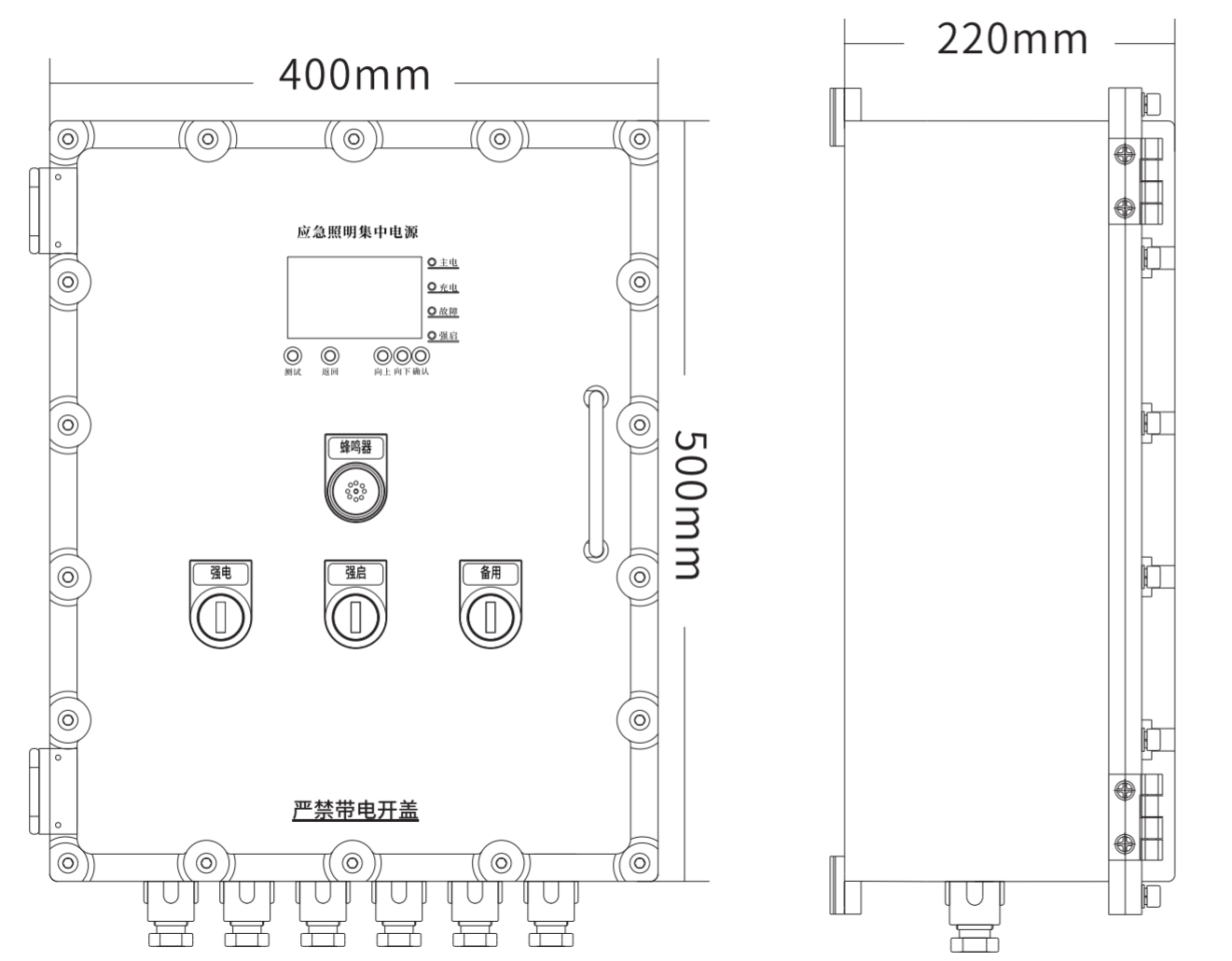
產品尺寸

產品參數

應急照明集中電源

產品特點
·鋁合金壓鑄外殼一體成型,表面高壓靜電噴塑。
·具有良好的防腐性能,抗沖擊強度大,不銹鋼外露緊固件。
·智能微處理控制/DSP 數字控制 SVPWM 調制技術,功能齊全。
·LCD 液晶顯示及故障聲光報警,維護簡單、方便。
·靜置無噪音、無污染、無公害、節能性好,非應急供電時基本不耗電。
·質量可靠,同類產品中性價比最好,具有完整的保護功能。
·過載能力強,保護功能完善。
產品尺寸

產品參數

應急照明配電箱

產品特點
·鋁合金壓鑄外殼一體成型,表面高壓靜電噴塑。
·具有良好的防腐性能,抗沖擊強度大,不銹鋼外露緊固件。
·智能微處理控制/DSP 數字控制 SVPWM 調制技術,功能齊全。
·靜置無噪音、無污染、無公害、節能性好,非應急供電時基本不耗電。
·質量可靠,同類產品中性價比最好,具有完整的保護功能。
·過載能力強,保護功能完善。
產品尺寸

產品參數

消防應急標志燈具

產品特點
·鋁合金壓鑄外殼,表面高壓靜電噴塑,具有良好的防腐性能,不銹鋼外露緊固件。
·抗高能量沖擊的鋼化玻璃透明件。
·硅橡膠密封條,耐高低溫,抗老化,具有良好的防水防塵性能。
·超長使用壽命,長期免維護。
部分圖案

產品尺寸

安裝尺寸

產品參數

消防應急照明燈具

產品特點
·鋁合金壓鑄外殼,表面高壓靜電噴塑,具有良好防腐性能,不銹鋼外露緊固件。
·抗高能量沖擊的鋼化玻璃透明件。
·硅橡膠密封條,耐高低溫,抗老化,具有良好的防水防塵性能。
·超長使用壽命,長期免維護。
產品尺寸

安裝尺寸

產品參數

消防應急照明燈具

產品特點
·鋁合金壓鑄外殼,表面高壓靜電噴塑,具有良好的防腐性能,不銹鋼外露緊固件。
·抗高能量沖擊的鋼化玻璃透明件。
·硅橡膠密封條,耐高低溫,抗老化,具有良好的防水防塵性能。
·超長使用壽命,長期免維護。
產品尺寸

安裝尺寸

產品參數

消防應急照明燈具

產品特點
·鋁合金壓鑄外殼,表面高壓靜電噴塑,具有良好防腐性能,不銹鋼外露緊固件。
·抗高能量沖擊的鋼化玻璃透明件。
·硅橡膠密封條,耐高低溫,抗老化,具有良好的防水防塵性能。
·超長使用壽命,長期免維護。
產品尺寸

安裝尺寸

產品參數

消防應急照明燈具

產品特點
·鋁合金壓鑄外殼,表面高壓靜電噴塑,具有良好防腐性能,不銹鋼外露緊固件。
·抗高能量沖擊的鋼化玻璃透明件。
·硅橡膠密封條,耐高低溫,抗老化,具有良好的防水防塵性能。
·超長使用壽命,長期免維護。
產品尺寸

安裝尺寸

產品參數

